數據中心設計如何滅火
4.1 滅火介質
滅火介質是指用于撲滅火災的各種物質,常見的滅火介質包括水基滅火劑、泡沫滅火劑、氣體滅火劑以及干粉滅火劑。
1.水基滅火劑:以水為滅火劑的方式,主要系統有消火栓系統、自動噴水系統、水噴霧系統等。

2.泡沫滅火劑:泡沫滅火系統分為低、中、高三種泡沫系統,其滅火機理主要是隔離作用,同時伴有窒息作用。
3.氣體滅火劑:以氣體為滅火劑的方式,主要有七氟丙烷(HFC-227ea)氣體滅火系統、IG-541氣體滅火系統等。
4.干粉滅火劑:主要以磷酸銨鹽和碳酸氫鹽滅火劑為主。

4.2 滅火機理
滅火的基本原理包括冷卻、室息、隔離和化學抑制,前三種主要是物理過程,后一種為化學過程。
1.冷卻滅火:將可燃物冷卻到燃點以下燃燒反應就會中止。如用水撲滅一般固體物質的火災,水吸收大量熱量,使燃燒物的溫度迅速降低,火焰熄滅。
2.窒息滅火:降低氧的濃度使燃燒不能持續,達到滅火的目的。如用二氧化碳、氮氣等來稀釋氧的濃度。窒息滅火多用于密閉或半密閉空間 。
3.隔離滅火:把可燃物與火焰、氧隔離開,使燃燒反應自動中止。如切斷流向火區的可燃氣體或液體的通道;或噴灑滅火劑把可燃物與氧和熱隔離開,是常用的滅火方法。
4.化學抑制滅火:物質的有焰燃燒中的氧化反應,都是通過鏈式反應進行的。碳氫化合物在燃燒過程中分子被活化,產生大量的自由基,H、OH和0的鏈式反應。滅火劑能抑降低自由基濃度中止鏈式反應撲滅火災。如用七氟丙烷氣體迅速奪取燃燒過程中的載體自由基,阻斷燃燒鏈,使燃燒得以終止。
4.3 消防水源
市政給水、消防水池、天然水源均可作為消防水源,雨水清水池、中水清水池游泳池儲水和水景水也可作為消防水源。消防水源宜優先采用市政給水。消防水源水質應滿足滅火設施本身,及其滅火、控火、抑制、降溫和冷卻等功能要求。消防管道內平時所充水的pH值應為6.0~9.0。雨水清水池、中水清水池、游泳池儲水和水景水作為消防水源時,應有保證在任何情況下均能滿足消防給水系統所需的水量和水質的技術措施。
4.4 火災初期火災報警、消防聯動、人員疏散
1.接收到火災報警信號:在接收到煙感或溫感探測器向火災報警系統的報警信號后,消防控制中心可以根據報警信號的位置和火勢情況,快速確定相應的滅火方案。
2.啟動消防聯動系統:消防控制中心可以通過聯動控制器,將相關的消防設備、設施和系統啟動起來,以協同完成滅火任務。例如,啟動消防泵、噴淋系統、排煙系統等。
3.監控和調整:在滅火過程中,消防控制中心應對消防設備和設施進行實時監控,并根據需要調整相關參數,以確保設備的正常運行和滅火效果。
4.配合人員疏散:在火災發生時,應立即組織人員進行疏散,并告知疏散路線和安全出口的位置。同時,消防控制中心可以通過廣播系統等設備,向人員發出疏散指令,并告知相應的安全知識和自救措施。

4.5 消火栓滅火系統
消火栓滅火系統是建筑內部最主要,最普遍的水滅火設施。它是由人工操作的,機動性很強的滅火設備。消火栓系統具有射流密集,水流集中、沖擊力強、射程遠、不受高溫煙氣影響的特點。它不但能撲滅初期火災,還可以撲滅正在猛烈燃燒的火災。
《數據中心設計規范》GB50174-2017,第13.1.6條規定:數據中心應設置室內消火栓系統和建筑滅火器,室內消火栓系統宜配置消防軟管卷盤。
《消防給水及消火栓系統技術規程》GB50974-2014中關于消火栓布置的規定如下:
室外消火栓布置:
7.2.5 室外消火栓的保護半徑不應超過150m,間距不應大于120m。
7.3.3 室外消火栓宜沿建筑周圍均勻布置,且不宜集中布置在建筑一側;建筑消防撲救面一側的室外消火栓數量不宜少于2個。
室內消火栓布置:
7.4.6 室內消火栓的布置應滿足同一平面有2支消防水槍的2股充實水柱同時達到任何部位的要求,但建筑高度小于或等于24.0m且體積小于或等于5000m³的多層倉庫、建筑高度小于或等于54m,且每單元設置一部疏散樓梯的住宅,以及本規范表3.5.2中規定可采用1支消防水槍的場所,可采用1支消防水槍的1股充實水柱到達室內任何部位。
7.4.8 建筑室內消火栓栓口的安裝高度應便于消防水龍帶的連接和使用,其距地面高度宜為1.1m;其出水方向應便于消防水帶的敷設,并宜與設置消火栓的墻面成 90°角或向下。
7.4.10 室內消火栓宜按直線距離計算其布置間距,并應符合下列規定:
(1)消火栓按2支消防水槍的2股充實水柱布置的建筑物,消火栓的布置間距不應大于30.0m;
(2)消火栓按1支消防水槍的1股充實水柱布置的建筑物,消火栓的布置間距不應大于50.0m 。
室內消火栓滅火系統由水源、泵站、管網、水泵接合器及消火栓等組成,按加壓方式可分為超高壓消火栓系統、臨時高壓消火栓給水系統及低壓消火栓給水系統。

4.6 自動噴水滅火系統
自動噴水滅火系統由灑水噴頭、報警閥組、水流報警裝置(水流指示器或壓力開關)等組件,以及管道、供水設施等組成,能在發生火災時噴水的自動滅火系統。該系統主要用于撲救建筑物初期火災平時處于準工作狀態,當設置場所發生火災時噴頭或報警控制裝置探測火災信號后立即自動啟動噴水滅火,具有安全可靠、經濟實用、滅火成功率高等的優點。
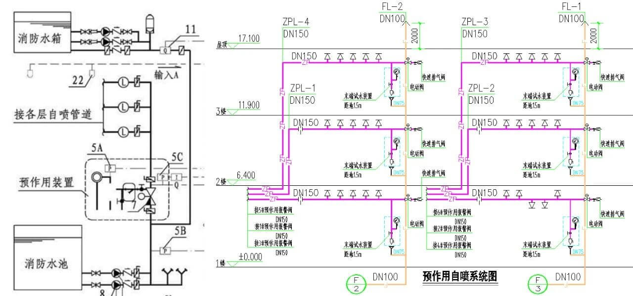
《數據中心設計規范》GB50174-2017,第13.1.2~13.1.4條條文解釋規定:自動噴水滅火系統是非常有效的滅火手段,特別是在抑制早期火災方面,且造價相對較低。預作用自動噴水滅火系統和濕式自動噴水滅火系統都可用于數據中心,但采用濕式自動噴水滅火系統時,應防止漏水等事故發生。當一個A級數據中心的數據業務可由另一個數據中心完成時,這個A級數據中心的主機房也可設置自動噴水滅火系統。因此在數據中心設計中,多采用預作用自動噴水滅火系統。
預作用自動噴水滅火系統分類如下圖所示:

単連鎖預作用系統是指僅有火災自動報警系統直接控制的預作用系統。處于準工作狀態時嚴禁誤噴的場所,宜采用単連鎖預作用系統。単連鎖預作用系統既兼有濕式系統及濕式系統的優點,同時又避免了濕式及干式系統的缺點。
雙連鎖預作用系統指由火災自動報警系統和充氣管道上設置的壓力開關控制的預作用系統。雙聯鎖預作用系統由火災自動報警系統和充氣管道上設置的壓力開關共同控制,消除了火災誤報的風險,相對于単連鎖系統安全性更高。但系統的噴水時間因排氣充水產生了滯后,消弱了系統的滅火能力。

預作用自動噴水滅火系統系統原理圖以及實際項目系統圖如下所示:

4.7 水噴霧滅火系統
水噴霧滅火系統指由水源、供水設備、管道、雨淋報警閥(或電動控制閥、氣動控制閥)、過濾器和水霧噴頭等組成,向保護對象噴射水霧進行滅火或防護冷卻的滅火系統。
《建筑設計防火規范》GB50016-2014(2018年)版第8.3.8條,下列場所宜采用水噴霧滅火系統:
1.單臺容量40MV·A及以上的廠礦企業油浸變壓器,單臺容量在90MV·A 及以上的電廠油浸變壓器,單臺容量在125MV·A 及以上的獨立變電站油浸變壓器;
2.充可燃油并設置在高層民用建筑內的高壓電容器和多油開關室。
因此,數據中心中的柴油發電機及儲油間需用水噴霧滅火系統保護。

水霧噴頭的平面布置方式可為矩形或菱形。當按矩形布置時,水霧噴頭之間的距離不應大于1.4倍水霧噴頭的水霧錐底圓半徑;當按菱形布置時,水霧噴頭之間的距離不應大于1.7倍水霧噴頭的水霧錐底圓半徑。水霧噴頭實際項目布置實例如下:

4.8 氣體滅火系統
氣體滅火系統是以氣體作為滅火介質的滅火系統,主要有七氟丙烷和IG-541兩種滅火系統。其具有滅火范圍廣(電氣,固體,液體等火災),釋放速度快,滅火效率高,滅火后基本不留痕跡,對被保護對象無污染無損害等的特點。
《建筑設計防火規范》GB50016-2014第8.3.9條第五款規定:A、B級電子信息系統機房內的主機房和基本工作間的已記錄磁(紙)介質庫中,宜設置氣體滅火系統。
《數據中心設計規范》GB50174-2017中第13.1.2條和13.1.3條規定:A、B、C級數據中心的主機房宜設置氣體滅火系統。
按系統的結構特點分類,氣體滅火系統可分為無管網滅火系統和有管網滅火系統。

有管網式氣體滅火系統設計實例如下:

無管網式氣體滅火系統設計實例如下:

《氣體滅火系統設計規范》GB50370-2005一些通用條文如下:
3.1.12 噴頭的保護高度和保護半徑,應符合下列規定:
(1)最大保護高度不宜大于6.5m;
(2)最小保護高度不應小于0.3m;
(3)噴頭安裝高度小于1.5m時,保護半徑不宜大于4.5m;
(4)噴頭安裝高度不小于1.5m時,保護半徑不應大于7.5m。
3.2.4 防護區劃分應符合下列規定:
(1)防護區宜以單個封閉空間劃分;同一區間的吊頂層和地板下需同時保護時,可合為一個防護區;
(2)采用管網滅火系統時,一個防護區的面積不宜大于800m²,且容積不宜大于3600m³;
(3)采用預制滅火系統時,一個防護區的面積不宜大于500m²,且容積不宜大于1600m³。
3.2.7 防護區應設置泄壓口,七氟丙烷滅火系統的泄壓口(下沿)應位于防護區凈高的2/3以上。
管網式七氟丙烷氣體滅火系統保護距離短,常用于小型防護區、獨立防護區、鋼瓶間與防護區距離近的場所,其輸送距離為40~60m。IG541氣體滅火系統保護距離長,常用于大型工程、大規模組合分配的項目,其輸送距離一級充壓系統為70~90m;二級充壓系統為100~120m。
4.9 滅火器系統
滅火器是一種輕便的滅火工具,主要有筒體、器頭、噴嘴等部件組成,借助驅動壓力將滅火劑噴出進行滅火。

《數據中心設計規范》GB50174-2017,第13.1.6條規定:數據中心應設置室內消火栓系統和建筑滅火器,室內消火栓系統宜配置消防軟管卷盤;第13.3.5條規定:數據中心內,建筑滅火器的設置應符合現行國家標準《建筑滅火器配置設計規范》GB50140的有關規定。滅火劑不應對電子信息設備造成污漬損害。
《建筑滅火器配置設計規范》GB50140-2005中關于滅火器最大保護距離的規定如下:

數據中心各機房模塊按嚴重危險級E類火災配置,充裝量為30kg推車式CO?滅火器(MTT30),最大保護距離18米。變配電間按嚴重危險級E類火災配MFT/ABC20 推車式磷酸銨鹽干粉滅火器,保護距離18米。其他公共區域、設備用房等按嚴重危險級每處放置5kg手提式磷酸銨鹽干粉滅(MF/ABC5)2具,保護距離15m。一個計算單元均不得少于兩具。
除消火栓組合箱內的滅火器外,還應根據滅火器的最大保護距離要求,在明顯和便于取用的地方增設滅火器配置點,使得每個計算單元的滅火器不少于2具,并使所有位置至少在1具滅火器保護范圍內。且不得影響疏散安全。
手提式滅火器宜設置在滅火器箱內或掛鉤、托架上,銘牌應朝外。其頂部離地面高度不應大于1.50m;底部離地面高度不宜小于0.08m。滅火器箱不得上鎖。