高密機房改造項目案例
浙江省某廳改造機房面積約為500平米,機房內目前安裝有200只機柜,機柜布置成6排,無冷熱通道封閉,機房內IT負載單機柜5kW,機房位于建筑的四層。用戶現有數據中心基礎設施和機柜內的IT設備已無法滿足不斷增長的計算和存儲需求,需要將低密機柜改造為高密機柜,現考慮在原有機房平面的基礎上,并在原機房配電容量允許的范圍內,將原機柜全部騰退,改造成若干個高發熱密度雙排微模塊,用戶改造后要求數據中心機房具備更靈活的擴展和升級能力,以適應未來不斷增長的計算和存儲需求。

海悟雙排微模塊
1.改造思路
原機房內200個5kW機柜改造成40個25kW高密機柜,改造后機房內可布置4個高密雙排微模塊(單模塊10個柜位)。空調配置方案為列間級精密空調或冷板式液冷空調。

2.列間級精密空調方案
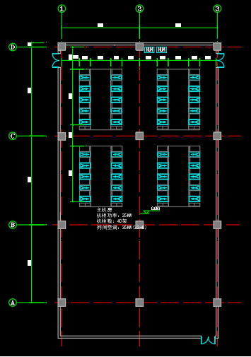
根據設計方案部署4個相同的雙排微模塊,每個微模塊分別部署10(8+2)臺列間級精密空調,共40(32+8)臺。列間級精密空調單機冷量:35kW;額定風量:8000m³/h;空調設備控制22℃送風,35℃回風;空調背面回風,正面出風;數量總計40臺。每座微模塊默認位置共10架IT機架,IT機架負載25kW /rack ,機房總計40架IT機架;微模塊封閉冷通道,冷通道寬1.8m。該方案布置方案如下圖:

列間級精密空調方案具體新增空調設備明細如下:

列間級精密空調方案具體新增配電設備明細如下:

機柜配電調整匯總:

注:變壓器、UPS、低壓柜的數量及選型不變。
列間布置方案空調配電調整匯總:

注:空調專用變壓器、UPS、低壓柜數量及選型是否調整,需根據所帶其他負荷綜合考慮。
相關新聞更多